21, rue des Luminaires 03500 BAYET   04 70 45 32 26    HORAIRES D'OUVERTURE

Une commune dynamique et vivante

En plein coeur de l'Allier

Avec de nombreuses randonnées

Eglise du XIIème siècle

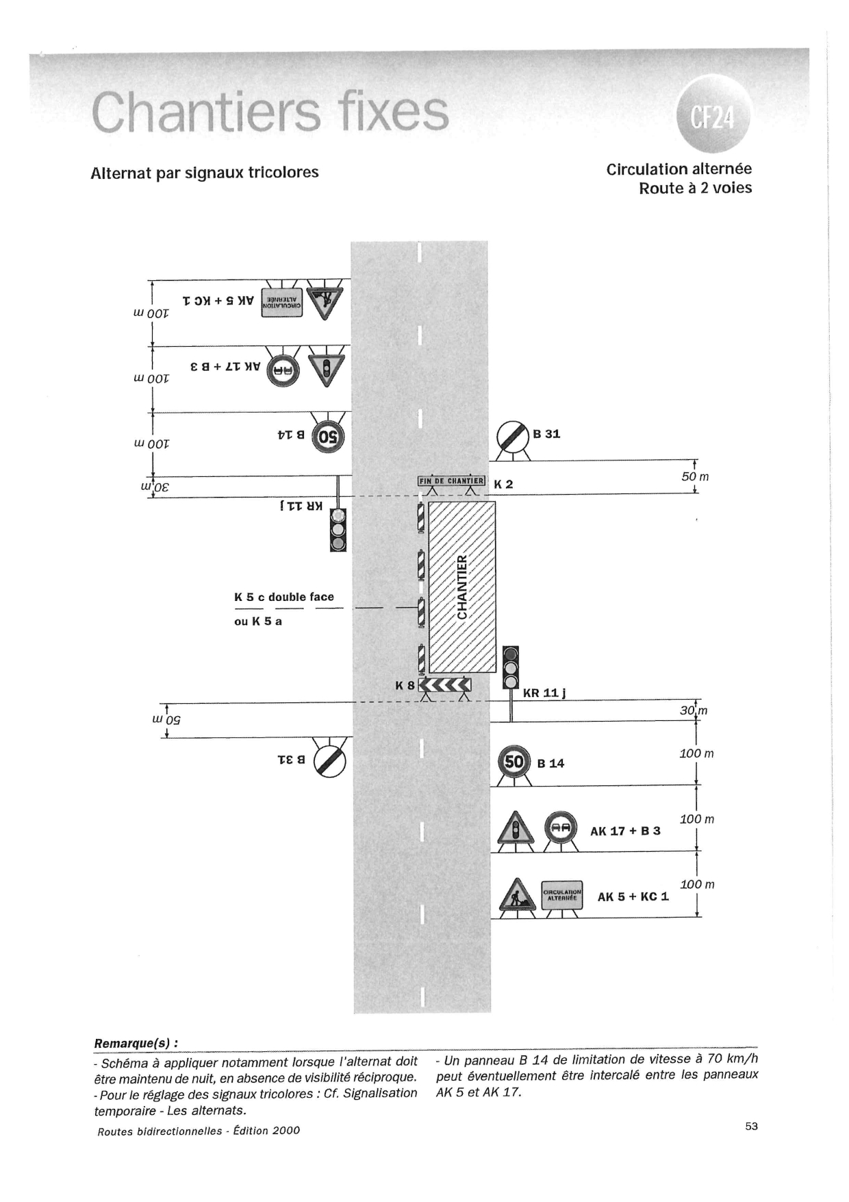
ARRETE DE CIRCULATION

24/09/2025

Ce site utilise des cookies afin de mesurer la fréquentation du site, de vous proposer des contenus animés et interactifs et de partager du contenu sur les réseaux sociaux.
Personnaliser